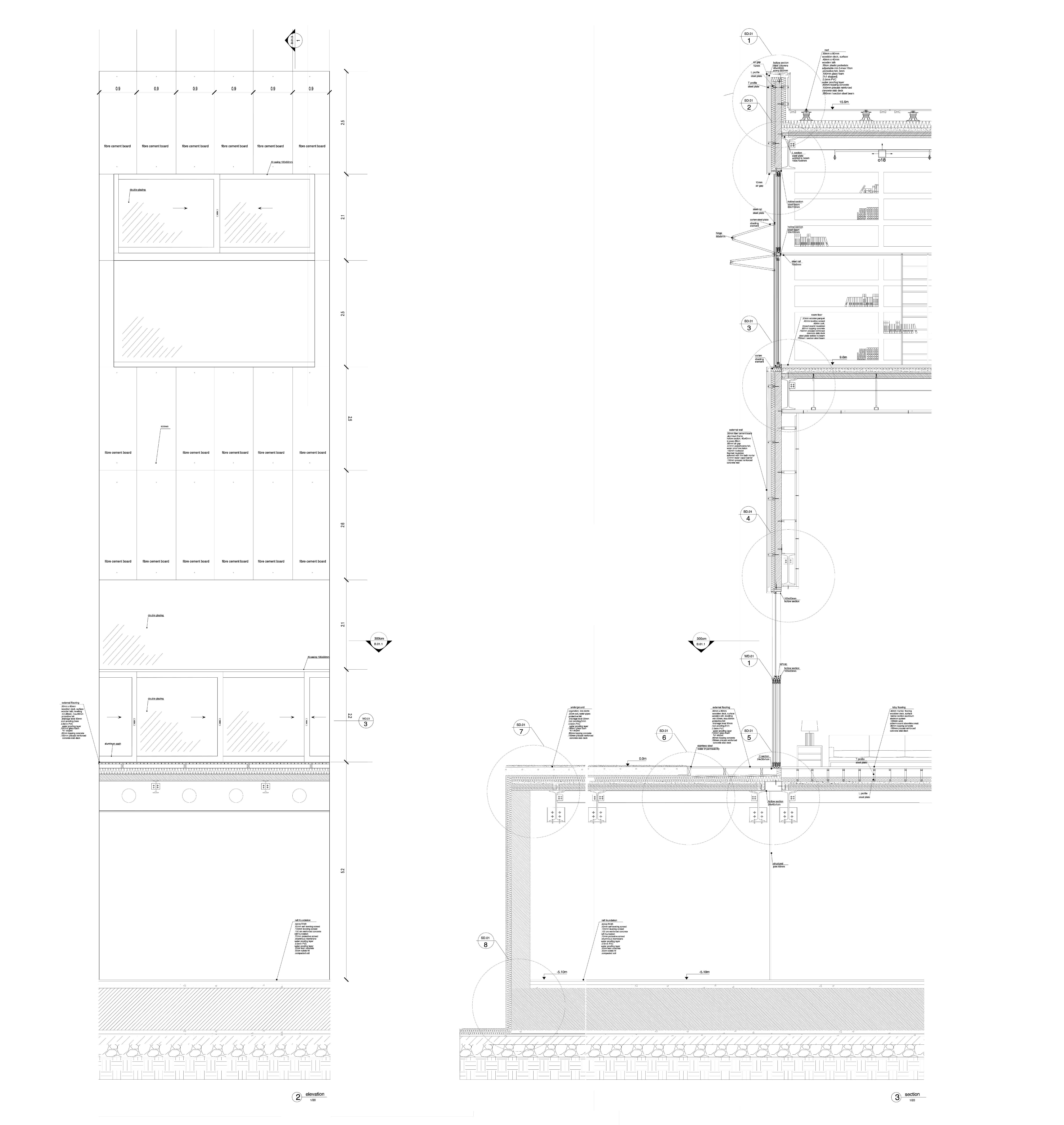
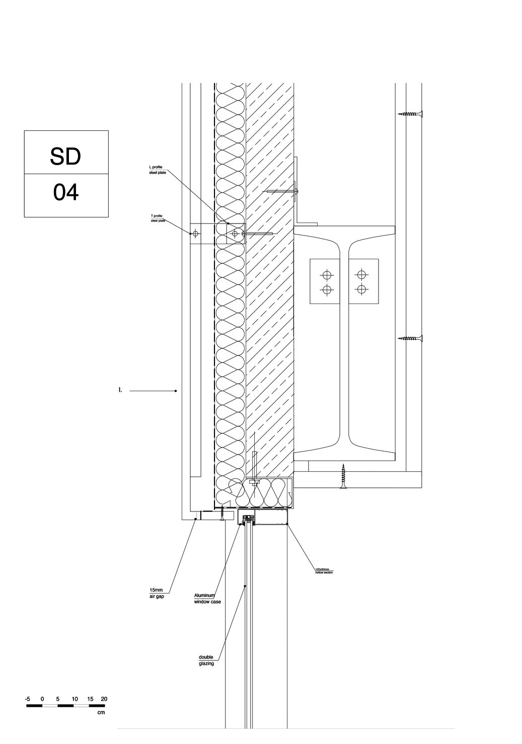
Hotels are, by definition, transitory dwellings: guests may stay for a day on business or a week on vacation; the writer determined to pen the next great novel may lock herself in the room for a month on end—but all eventually continue on their way. meow hotel is a destination for study and solitude with a community of permanent feline residents. Each room is a library, containing books and research materials on a particular topic. Noise from the adjacent road is attenuated by a combination of trees and barriers. Light, similarly, is controlled by adjustable shades integrated into the facade.



Istanbul Technical University
Cem Altun, Işıl Türkay


meow hotel

Academic / Individual


Construction Project
Fall 2017






Hotels are, by definition, transitory dwellings: guests may stay for a day on business or a week on vacation; the writer determined to pen the next great novel may lock herself in the room for a month on end—but all eventually continue on their way. meow hotel is a destination for study and solitude with a community of permanent feline residents. Each room is a library, containing books and research materials on a particular topic. Noise from the adjacent road is attenuated by a combination of trees and barriers. Light, similarly, is controlled by adjustable shades integrated into the facade.


Istanbul Technical University
Cem Altun, Işıl Türkay
Spring 2017
Academic / Individual



meow hotel


︎︎︎︎
/
nidaekenel@gsd.harvard.edu